När vi först kontaktades om stambyte på en av Sveriges största bostadsrättsföreningar – BRF Kungsklippan i Stockholm – handlade uppdraget om att 3D-skanna samt ta fram underlag och fastighetsmodeller. Genom flera etapper har vi sedan dess ansvarat för två tredjedelar av Kungsklippans fastigheter med över 1 000 lägenheter – ett omfattande projekt på flera hundra miljoner kronor.
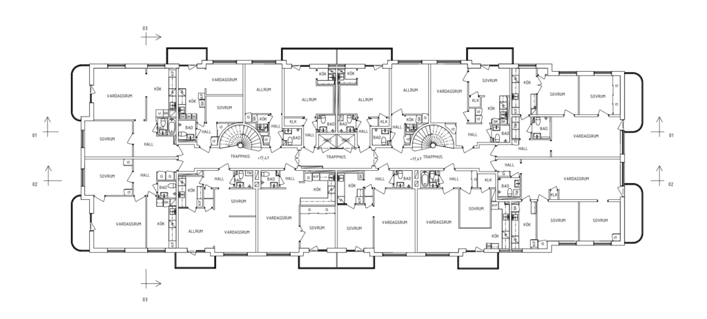
Vårt team har under intensiva dagar laserskannat åtta fastigheter med totalt över 80 våningsplan, inklusive lägenheter, trapphus, lokaler och tekniska utrymmen – allt med millimeterprecision tack vare vår NavVis-scanner. Resultatet är ett omfattande punktmoln som ligger till grund för de BIM-modeller vi nu även tagit fram.

Fastighetsägarna har ansvarat för den tekniska driften, medan INTEC, föreningens projektresurs, bidragit med systemlösning och förfrågningsunderlag för stamrenoveringen. INTEC kombinerar teknisk kompetens och innovativ teknik med strategisk rådgivning och trygg service för bostadsrättsföreningar – en ovärderlig partner i ett projekt som detta.
All data och ritningar finns dessutom i Yta, vår plattform för fastighetsinformation, där både Intec och föreningen enkelt kan navigera, dela information, hitta dokument och få tillgång till 360-bilder. Med modellerna får föreningen inte bara ett tydligt underlag för stambytet, utan också en digital tvilling av fastigheterna – något som underlättar detta och framtida projekt, underhåll och planering.
Vi är stolta över att återigen få arbeta med INTEC och BRF Kungsklippan, och se hur våra lösningar skapar konkret nytta för både fastighetsägare och boende.
